Great Start to the Year with Planning Success!
- Michael Groves
- Jan 16
- 1 min read
We're only halfway through January and we already have been granted 2 planning approvals!

The first project is for a single-storey rear extension and internal alterations to a property in Hildenborough. The homeowner is a carpenter and was keen to work with timber and for the extension to provide a visual contrast with the rest of the house. The large rear, sliding window frames views of the garden and incorporates a planter.

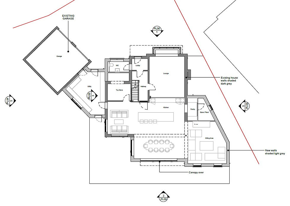
The second project involved a combination of a rear/side extension and front/side extension to a new-build property in the countryside near Paddock Wood for a large family. Through considered design, we managed to secure planning permission for a volumetric increase of around 45%. The extensions create an enlarged kitchen-diner space as well as a generous sitting room facing onto the garden. The other extensions provide a new WC, closer to the entrance, and a large utility room.
If you would like to see how you could extend your home, please do get in touch:
Planning Permission
Architect Tonbridge
Architect Tunbridge Wells
Architect Sevenoaks



Comments